Beschrijving
Ruime splitlevelwoning met tuin & 2 balkons in rustige, kindvriendelijke buurt
Stap binnen in deze charmante splitlevelwoning, verdeeld over vier woonlagen, waar licht, ruimte en sfeer samenkomen. Geniet van een zonnige tuin, twee balkons en een garage met eigen oprit. Met drie slaapkamers is deze woning ideaal voor gezinnen die comfort, privacy en een rustige woonomgeving waarderen.
Ligging
Gelegen in een rustige en kindvriendelijke buurt, met alle voorzieningen binnen handbereik. Winkelcentrum Dukenburg, NS-station Dukenburg en de snelwegen A73/A50 zijn binnen vijf minuten bereikbaar. Het centrum van Nijmegen bereikt u in ongeveer 15 minuten met de auto.
Natuurliefhebbers en sportievelingen zullen de locatie waarderen: recreatiegebied De Berendonck en het natuurreservaat Hatertse Vennen liggen op loopafstand en bieden volop mogelijkheden voor wandelen, fietsen en ontspanning in de buitenlucht.
Begane grond
Entree/hal met toilet, meterkast en toegang tot de garage, kelder en de woonkamer.
De lichte woonkamer beschikt over grote raampartijen en een openslaande deur naar de tuin. Een gezellige haard maakt de ruimte compleet.
Level 1
Moderne woonkeuken met kookeiland. De keuken is voorzien van diverse inbouwapparatuur en biedt veel opbergruimte. Dankzij de grote ramen is er volop lichtinval. Vanuit deze ruimte is via een openslaande deur toegang tot het eerste balkon met uitzicht op de tuin.
Level 2
Overloop met een ruime slaapkamer en toegang tot het tweede balkon.
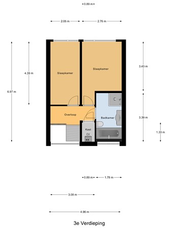
Level 3
Overloop met twee slaapkamers en de badkamer.
De badkamer is compleet uitgerust met een ligbad, aparte douche, toilet en wastafelmeubel. Daarnaast bevindt zich op de overloop een praktische bergkast met de cv-ketel.
Buitenruimte
De ruime achtertuin ligt op het zonnige zuiden en is voorzien van een verhoogd terras direct aan de woning. Vanaf het terras leidt een trapje met pergola verder de tuin in. Achterin de tuin bevindt zich een overkapping met lichtstraat en berging. De tuin is afgewerkt met groene borders en een afscheiding van houten schuttingen en natuurlijke beplanting.
Kenmerken:
- Woonoppervlakte: ca. 135 m²
- Perceel: 180 m²
- Garage 18 m²
- 2 Balkons: 11 m²
- Berging: 4 m²
- Inhoud: ca. 566 m³
- Bouwjaar: 1973
Extra bijzonderheden en upgrades:
- Energielabel B)
- Bitumen dak vernieuwd (2021)
- Schoorsteenpijp vervangen (2021)
- Kunststof kozijnen op de bovenverdiepingen
- Houten kozijnen beneden geschilderd (2018)
- Glasvezelaansluiting aanwezig
- Traprenovatie open trap (2023)
- Nieuwe opdekdeuren (2023)
- Cv-ketel Intergas (2024, eigendom)
- Badkamer (2005)
- Keuken met heet waterkraan en inbouwapparatuur (2021)
- Meterkast en aansluiting vernieuwd door Liander (2020)
- 18 zonnepanelen (eigendom)
- Dubbel glas HR++
- Airco (single split, 2023)
- Garage met eigen oprit
- Berging met overkapping in de achtertuin