Beschrijving
Volledig geïsoleerde tweekapper met garage, voorzien van label A
Ruimte, comfort en duurzaamheid komen samen in deze goed onderhouden twee-onder-een-kapwoning, gelegen op de hoek van de straat. De woning beschikt over een eigen oprit met carport en een uitgebouwde garage, een ruime woonkamer met serre, vier slaapkamers en een dakkapel. De zonnige tuin biedt van ’s ochtends tot ’s avonds zon en veel privacy. Dankzij de volledige isolatie, 8 zonnepanelen en het grotendeels HR++ glas is de woning energiezuinig en voorzien van energielabel A.
Locatie:
De woning ligt in een rustig en kindvriendelijk deel van Rijkerswoerd, aan een autoluw doodlopend straatje met uitsluitend bestemmingsverkeer. In de directe omgeving bevinden zich diverse speeltuintjes, groenstroken en wandelpaden. Winkelcentrum Rijkerswoerd ligt op loopafstand voor de dagelijkse boodschappen, terwijl Winkelcentrum Kronenburg binnen vijf minuten rijden bereikbaar is. Ook recreatiegebieden zoals de Rijkerswoerdse Plassen liggen op slechts enkele minuten afstand, ideaal voor een wandeling of fietstocht in het groen. Het nabijgelegen Zeegbos biedt bovendien volop ruimte om te genieten van de natuur. Station Arnhem-Zuid is goed per fiets bereikbaar en de bus brengt je binnen 15 minuten naar het centrum van Arnhem.
Dankzij de gunstige ligging zijn zowel het centrum van Arnhem als de uitvalswegen richting de A325 en A15 snel bereikbaar.
Indeling
Begane grond
Entree met hal, meterkast, toilet en trapopgang. De woonkamer voorzien van gezellige pellet kachel ligt aan de voorzijde met uitzicht op de straat. De keuken, voorzien van inbouwapparatuur en veel opbergruimte, grenst aan de eetkamer en biedt toegang tot de veranda (met 6 glazen schuifdeuren), de garage en de achtertuin.
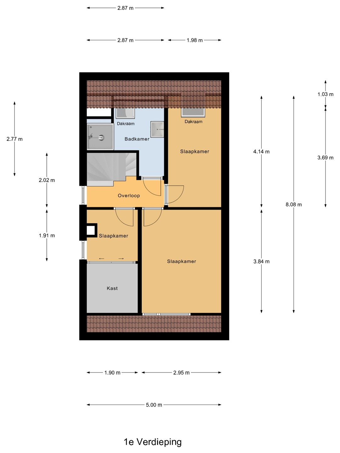
Eerste verdieping
Overloop met toegang tot drie slaapkamers en een moderne badkamer met inloopdouche, toilet, wastafelmeubel en dakraam. twee slaapkamers aan de voorzijde waarvan één met dakkapel en één met inloopkast en de derde slaapkamer ligt aan de achterzijde met een dakraam.
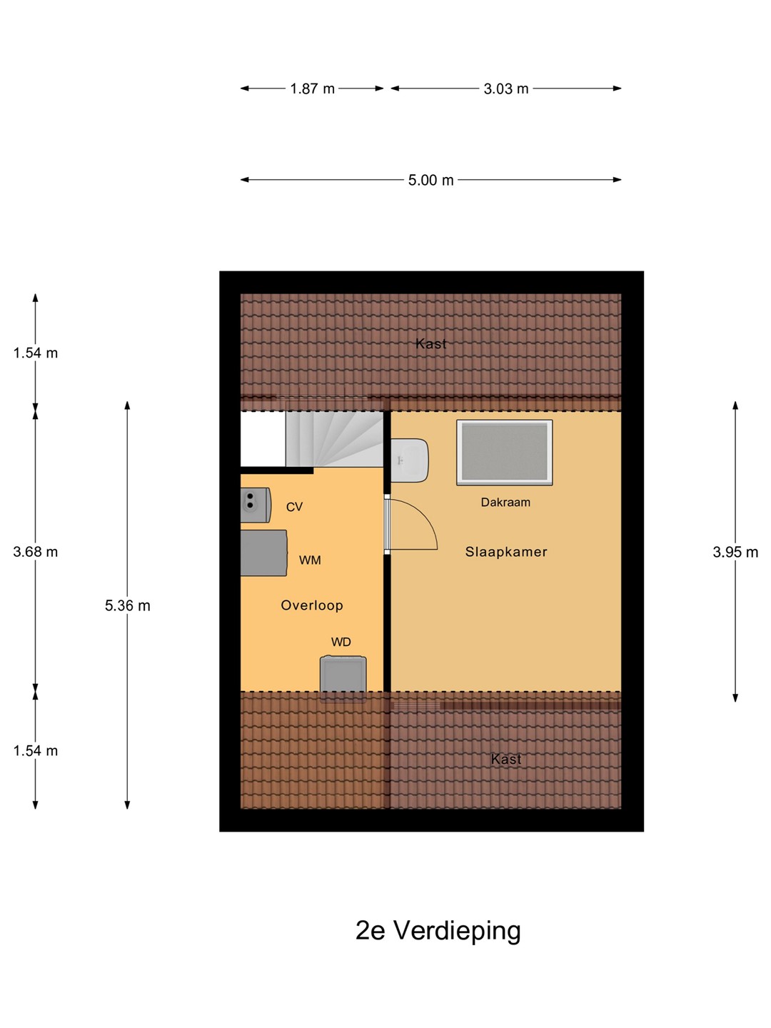
Tweede verdieping
Overloop met toegang tot de vierde slaapkamer, voorzien van dakraam en opbergmogelijkheden. Hier bevinden zich ook de cv-ketel, wasmachine en droger.
Buitenruimte
Voortuin met een oprit, garage, carport en een extra parkeerplaats voor een tweede auto. De garage is bereikbaar via zowel de voor- als achterzijde. De achtertuin ligt op het noordwesten en is voorzien van een glazen veranda met schuifdeuren, groene schuttingen, bloembakken en veel privacy. Extra pluspunt als een van de weinige in deze wijk is dat je om het huis kunt lopen.
Kenmerken:
- Woonoppervlakte: 101 m2
- Garage: 14 m2
- Veranda: 17 m2
- Inhoud: 477 m3
- Perceeloppervlakte: 217 m²
- Bouwjaar: 1990
Bijzonderheden:
- Energielabel A
- HR++ glas, dak-, vloer- en muurisolatie (m.u.v. garage)
- Uitgebouwde berging tot garage
- De locatie van de garage maakt het mogelijk om op termijn de woning levensloopbestendig te realiseren.
- Airco
- Pelletkachel
- Glasvezelkabel
- Mechanische ventilatie
- Voorzien van rolluiken
- 8 zonnepanelen (eigendom)
- Keuken vernieuwd in 2005 (kookplaat 2021, vaatwasser en koelvrieskast 2017)
- Badkamer vernieuwd in 2016
- Mechanische ventilatie en glasvezelaansluiting
- Remeha cv-ketel (eigendom, 2014)
- Dakramen vervangen door Velux kunststoframen (2024)
- Gevelbekleding vernieuwd (2021, Keraliet)
- Veranda (2023)
- Dakkapel (Keraliet), voorzien van een verhuisraam; beide ramen in de dakkapel draaien naar binnen, waardoor er ook met gesloten rolluiken geventileerd kan worden.
- Meterkast vernieuwd (oktober 2021) met 3-fase groepenkast
- Eigen oprit met ruimte voor 2 auto’s