Beschrijving
Deze instapklare, vrijstaande woning in de geliefde Arnhemse nieuwbouwwijk Schuytgraaf is prachtig gesitueerd. Aan de voorzijde geniet je van een vrij uitzicht over een waterpartij en het omliggende groen, een plek waar rust, ruimte en privacy samenkomen.
De woning biedt alles wat je van een modern gezinshuis mag verwachten: een royale uitgebouwde woonkamer, maar liefst vier volwaardige slaapkamers, een ruime badkamer en een garage. De zonnige achtertuin beschikt bovendien over een sfeervolle veranda en een praktische achterom.
Met uitstekende isolatie, aansluiting op stadsverwarming en een hoogwaardige afwerking is het wooncomfort hier van een hoog niveau.
Ben je op zoek naar een lichte, ruime en moderne vrijstaande woning op een aantrekkelijke locatie? Dan is dit jouw kans!
Ligging:
De woning is gelegen in de gewilde wijk Schuytgraaf, in het rustige en groene deelgebied “De Waarden”. De wijk beschikt over een eigen winkelcentrum en is gunstig gelegen ten opzichte van uitvalswegen. Dankzij NS-station Arnhem Zuid en diverse busverbindingen ben je bovendien snel in het centrum van Arnhem en omliggende steden.
In de directe omgeving vind je scholen, sportvoorzieningen, gezondheidszorg en supermarkten. Voor natuurliefhebbers is het hier heerlijk wonen: parken, waterpartijen en wandelgebieden liggen letterlijk om de hoek.
“De Waarden” is een groene, waterrijke buurt, volledig omgeven door water en gelegen aan de Zuidwinplas. De combinatie van natuur, voorzieningen en bereikbaarheid maakt dit tot een van de meest geliefde woonplekken binnen Schuytgraaf.
Indeling:
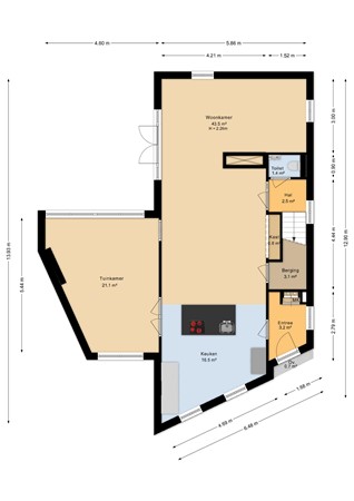
Begane grond
Je komt binnen in de hal met garderobe. Vanuit hier heb je toegang tot de meterkast, het toilet, de woonkamer en de keuken.
De lichte, tuingerichte woonkamer is voorzien van een sfeervolle zwevende ethanolhaard aan de ene zijde en een tv-opstelling met gezellige zithoek aan de andere zijde. Dankzij de hoge raampartijen en openslaande deuren naar de tuin lopen binnen en buiten mooi in elkaar over.
Aansluitend bevindt zich de eetruimte met een maatwerk vakkenkast en de luxe open keuken met kookeiland, voorzien van inbouwapparatuur en veel opbergruimte. Via de keuken kom je in de gerealiseerde aanbouw, waardoor er extra leefruimte is ontstaan. De tussenliggende deuren maken het mogelijk de ruimtes af te sluiten, waardoor de aanbouw, ook wel tuinkamer, voor meerdere doeleinden geschikt is. Zo kan deze ruimte dienen als verlengstuk van de woonkamer, maar ook als aparte, multifunctionele ruimte die aansluit bij uiteenlopende woonwensen. De ruimte wordt verwarmd middels elektrische warmtepanelen.
Eerste verdieping
Op de eerste verdieping bevinden zich vier slaapkamers en een kastenkamer. De kastenkamer geeft toegang tot één van de slaapkamers; deze ruimtes vormden oorspronkelijk samen één kamer. Daarnaast is er een moderne badkamer met douche, ligbad en wastafelmeubel. Via de overloop is tevens toegang tot een separaat tweede toilet en een berging met wasmachineaansluiting.
Buiten
De verzorgde achtertuin is ingericht om optimaal van het buitenleven te genieten. Er zijn diverse terrassen en een ruime overkapping met glas aan de zijkant, waardoor je ook bij minder weer comfortabel buiten kunt zitten. Verder is de tuin voorzien van gazon en groene borders met een nette erfafscheiding van schuttingen en beplanting. De tuin is bereikbaar via een achterom.
Kenmerken:
- Woonoppervlakte: 169 m2
- Gebouwgebonden buitenruimte: 1 m2
- Overkapping: 18 m2
- Inhoud: 568 m3
- Perceeloppervlakte: 280 m²
- Bouwjaar: 2009
- Energielabel A+
Bijzonderheden:
- Volledig geïsoleerd
- HR++ beglazing
- Houten kozijnen (geschilderd in 2020)
- Mechanische ventilatie
- 12 Zonnepanelen
- Glasvezelaansluiting aanwezig
- Vloerverwarming begane grond
- Uitbouw en veranda
- Shutters (ter overname)
- Hoge deuren en taatsdeur
- Gietvloer in woonkamer
- Maatwerk vakkenkast
- Alles gestuct op de begane grond en deels op de verdieping