Beschrijving
In de kindvriendelijke wijk De Laar-West ligt deze ruime tussenwoning aan een rustige straat. De woning beschikt over vier slaapkamers, een lichte woonkamer en een achtertuin op het oosten met een stenen berging en achterom. De woning biedt volop potentieel om volledig naar eigen wens te moderniseren en in te richten, ideaal voor een comfortabel gezinsleven in een groene en rustige omgeving.
Ligging
De Helmondstraat ligt in een kindvriendelijke woonwijk met veel groen en in de nabije omgeving alles wat je nodig hebt: je dagelijkse boodschappen doe je in het winkelcentrum De Laar-West, de Rijkerswoerdse plassen liggen op loopafstand en in de directe nabijheid zijn er (basis)scholen, meerdere speeltuinen en een kinderboerderij. Het openbaar vervoer is uitstekend geregeld - er is een goede busverbinding en NS station Arnhem Zuid ligt op 5 minuten fietsen. De snelwegen in de regio zijn binnen enkele minuten bereikbaar.
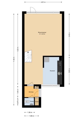
Indeling
Begane grond
Je komt binnen in de hal met garderobe, meterkast en toilet. De woonkamer aan de achterzijde is licht door de grote raampartijen en biedt vrij uitzicht. De keuken bevindt zich aan de voorzijde van de woning en kijkt uit op de straat. Vanuit de woonkamer is er toegang tot de tuin en de trap naar de eerste verdieping.
Eerste verdieping
Overloop met drie slaapkamers en de badkamer. De badkamer is voorzien van een douche, toilet, wastafel en aansluiting voor de wasmachine.
Tweede verdieping
Op de tweede verdieping bevindt zich een ruime vierde slaapkamer met eigen wastafel. Deze kamer kan ook uitstekend worden ingericht als werkkamer of hobbykamer. Op de ruime zolderruimte staat de cv-ketel opgesteld.
Tuin
De achtertuin ligt op het oosten en biedt vrij uitzicht op een grasveld. De tuin is aangelegd met bestrating en groene borders. Achterin staat een ruime stenen berging, ideaal voor het opbergen van fietsen, tuinspullen of gereedschap. Er is ook een achterom, wat het praktisch in gebruik maakt.
Algemene gegevens:
- Bouwjaar: 1976
- Woonoppervlakte: 127 m²
- Berging: 6 m²
- Perceeloppervlakte: 139 m²
- Inhoud: 449 m³
- Energielabel: C
Bijzonderheden:
- Grotendeels dubbel glas (voordeur enkel)
- Gevel- en vloerisolatie
- Houten kozijnen, circa 6-7 jaar geleden geschilderd
- Mechanische ventilatie
- Cv-combiketel Intergas 2021 (eigendom)
- Achtertuin op het oosten met vrij uitzicht