Beschrijving
Ruime gezinswoning aan water met tuin, 3 slaapkamers en parkeerplek
Aan de rand van de populaire wijk Schuytgraaf ligt deze uitstekend onderhouden, modern afgewerkte tussenwoning, direct aan een rustig watertje. De woning beschikt over 3 slaapkamers, met de mogelijkheid om eenvoudig een extra slaapkamer of een comfortabele werkkamer te creëren – ideaal voor gezinnen of thuiswerkers. Verder is er een eigen parkeerplaats op een mandelig terrein, een vrijstaande houten berging, een zonnige achtertuin en 8 zonnepanelen. De woning is volledig geïsoleerd waardoor de woning veel comfort biedt en lage energiekosten heeft.
Ligging
Deze woning ligt in de kindvriendelijke wijk Schuytgraaf – Zuid, op korte afstand van alle dagelijkse voorzieningen. Op loopafstand vindt u scholen, sportvoorzieningen, winkelcentrum Schuytgraaf en NS-station Arnhem-Zuid. De wijk heeft een moderne, rustige uitstraling en biedt uitstekende verbindingen met de A50 en A325. Het centrum van Arnhem is binnen 15 minuten fietsen bereikbaar, waardoor u het beste van beide werelden hebt: rust en bereikbaarheid.
Indeling
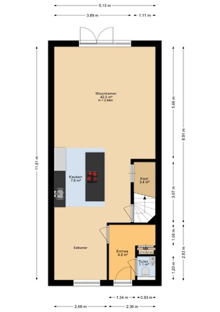
Begane grond
Hal met garderobe, meterkast en toilet. De woonkamer bevindt zich aan de achterzijde en is voorzien van een grote raampartij die veel natuurlijk licht binnenlaat. Openslaande deuren bieden een directe verbinding met de tuin, waardoor binnen en buiten naadloos in elkaar overlopen.
Centraal in de ruimte staat de moderne keuken met kookeiland, voorzien van inbouwapparatuur en voldoende opbergruimte. Tevens is er centraal in de ruimte de trapopgang en een riante trapkast aanwezig. Het eetgedeelte ligt aan de voorzijde en biedt uitzicht op de straat en het water.
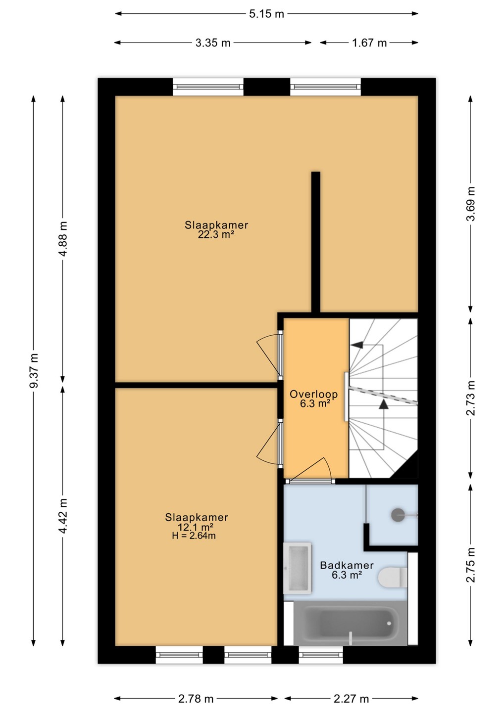
Eerste verdieping
De overloop geeft toegang tot twee ruime slaapkamers, waarvan één met walk-in closet. De moderne badkamer is voorzien van een wastafelmeubel, douche, ligbad, toilet, designradiator en een raam voor extra daglicht.
Tweede verdieping
Op deze verdieping bevindt zich één slaapkamer. De ruime overloop biedt echter volop mogelijkheden om eenvoudig een extra kamer te creëren, bijvoorbeeld als slaapkamer, werk- of hobbyruimte. De aanwezige dakkapel zorgt voor veel natuurlijk licht en geeft de ruimte een open en prettige sfeer. Verder is er een praktische wasruimte met aansluitingen voor wasmachine en droger en de zonnepaneleninstallatie op het dak.
Tuin
De onderhoudsvriendelijke achtertuin ligt op het zuidoosten en is voorzien van bestrating, houten schuttingen en een vrijstaande houten berging – ideaal voor fietsen of extra opslag. Een achterom biedt extra gemak.
Algemene gegevens:
- Bouwjaar: 2016
- Woonoppervlakte: 155 m²
- Berging: 6 m²
- Perceeloppervlakte: 120 m²
- Inhoud: ca. 535 m³
- Energielabel: A
Bijzonderheden:
- Vloer-, muur- en dakisolatie
- Kunststof kozijnen
- Volledig voorzien van HR++ beglazing
- Stadsverwarming
- Vloerverwarming op de begane grond
- 8 zonnepanelen (2016)
- Keuken en badkamer 2016
- Nieuwe deuren (3x) in woonkamer, trapkast en hal geplaatst in 2024
- Rolluiken geplaatst bij ramen voor- en achterzijde in 2020
- Mechanische ventilatie
- Glasvezel aanwezig
- Mogelijkheid tot realiseren van een 4e en 5e slaapkamer
- Eigen parkeerplaats op mandelig terrein, vve bijdrage voor mandelig terrein € 50,-- per jaar