Beschrijving
Geïsoleerde stijlvolle vrijstaande woning in “De Tuin van Elden”
Op zoek naar een instapklare, ruime vrijstaande woning met garage, eigen oprit én een fraai aangelegde tuin? Deze moderne woning (bouwjaar 2016) aan de Cantatestraat 14 combineert comfortabel wonen met een hoogwaardige afwerking, waaronder een luxe woonkeuken met kookeiland, vloerverwarming, strakke gietvloeren en vier slaapkamers. De woning is gelegen in de geliefde, kindvriendelijke wijk ‘De Tuin van Elden’, een ideale plek voor wie comfortabel en zorgeloos wil wonen.
Locatie:
Cantatestraat 14 ligt in het sfeervolle Elden, een bijzonder stukje Arnhem met een dorps karakter en een groene, rustige uitstraling. De woning bevindt zich in de jonge en ruim opgezette wijk ‘De Tuin van Elden’, direct grenzend aan het monumentale Park Westerveld. Je woont hier in een prettige, kindvriendelijke omgeving met veel groen en waterpartijen, terwijl alle voorzieningen binnen handbereik zijn. Winkelcentrum Kronenburg, het GelreDome en het centrum van Arnhem zijn snel bereikbaar, en via een landelijke fietsroute sta je binnen tien minuten in de binnenstad. Dankzij de nabijheid van de A12, A50 en N325 is ook de rest van de regio uitstekend ontsloten.
Indeling
Begane grond:
Bij binnenkomst tref je een ruime hal met meterkast, toiletruimte met fontein, en de trapopgang naar boven. De lichte woonkamer staat in open verbinding met de royale woonkeuken, die is uitgerust met een modern kookeiland en alle benodigde inbouwapparatuur. Dankzij de vele ramen en openslaande deuren naar de achtertuin is er volop natuurlijk licht. Vanuit de keuken loop je door naar de bijkeuken, die aansluit op de garage. Deze is zowel binnendoor als via openslaande deuren aan de voorzijde én een deur aan de achterzijde bereikbaar, en beschikt bovendien over een praktische vliering. Aangrenzend aan de garage is een overkapping geplaatst, ideaal voor beschut buiten zitten. De gehele begane grond is voorzien van een strakke gietvloer met comfortabele vloerverwarming (hal, toilet, woonkamer, keuken en bijkeuken). De hoge plafonds en strak gestuukte wanden zorgen voor een moderne, ruimtelijke uitstraling. Aan de voorzijde van de woning bevindt zich een eigen oprit met ruimte voor twee auto’s.
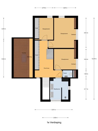
Eerste verdieping:
Op de eerste verdieping geeft de ruime overloop met praktische, op maat gemaakte kastenwand toegang tot drie slaapkamers, een apart toilet met fontein en de moderne badkamer. Deze is uitgerust met twee wastafelmeubels en een royale inloopdouche met zowel een regendouche als een reguliere douche. Voor extra comfort is de badkamer voorzien van warmwatervloerverwarming én een designradiator, elk afzonderlijk regelbaar. Net als de begane grond is ook deze verdieping afgewerkt met een strakke gietvloer, wat zorgt voor een rustige en moderne uitstraling. Vanaf de overloop leidt een vaste trap naar de tweede verdieping.
Tweede verdieping:
De tweede verdieping bestaat uit een ruime overloop met toegang tot een volwaardige slaapkamer en een aparte kamer waar zich de cv-ketel, de warmteterugwinunit en de witgoedopstelling bevinden. De slaapkamer is voorzien van een dakkapel, wat zorgt voor extra ruimte en daglicht. Deze verdieping biedt volop mogelijkheden voor bijvoorbeeld een thuiswerkplek, hobbyruimte of logeerkamer.
Buiten:
Rondom de woning ligt een verzorgde, fraai aangelegde tuin, met aan de achterzijde een ruime achtertuin op het noordoosten. Dankzij de royale afmetingen is er op elk moment van de dag wel een plekje in de zon of juist in de schaduw te vinden. Aan de voorzijde beschikt de woning over een voortuin en een eigen oprit met ruimte voor twee auto’s. De combinatie van groen, ruimte en privacy maakt het buitenleven hier bijzonder prettig.
Kenmerken:
- Woonoppervlakte: 167 m2
- Overige inpandige ruimte: 17 m2
- Gebouwgebonden buitenruimte: 11 m2
- Inhoud: 675 m3
- Perceeloppervlakte: 359 m²
- Bouwjaar: 2016
Bijzonderheden:
- Energielabel A
- Volledig voorzien van HR++ glas
- Volledig voorzien van dak-, vloer- en muurisolatie (m.u.v. de garage)
- Vloerverwarming begane grond (hal, toilet, woonkamer, keuken en bijkeuken) en badkamer
- Mechanische ventilatie en glasvezelaansluiting
- Begane grond en eerste verdieping voorzien van een fraaie gietvloer
- Voorzien van Intergas cv ketel uit 2016 (eigendom)
- Voorzien van garage met vliering en een oprit met ruimte voor twee auto's