Beschrijving
Woning (2024) in Schuytgraaf, volledig geïsoleerd A+++
In de jonge en populaire wijk Schuytgraaf staat deze moderne en verrassend ruime tussenwoning uit 2024. Met maar liefst 154 m² woonoppervlakte en een perceel van 187 m² biedt de woning volop leefruimte.
De uitbouw aan de achterzijde zorgt voor een royale woonkamer met veel lichtinval en een prachtig vrij uitzicht, terwijl de zonnige tuin op het zuiden dit fijne geheel compleet maakt. Bovendien is de woning met energielabel A+++ en 8 zonnepanelen volledig klaar voor de toekomst.
Ligging:
De woning ligt in Schuytgraaf-Noord, een rustige, kindvriendelijke en moderne wijk in Arnhem-Zuid. De combinatie van vrij uitzicht, weinig verkeer en veel groen zorgt voor een prettige woonomgeving.
In de directe omgeving bevinden zich basisscholen, kinderopvang, speelvoorzieningen en een winkelcentrum. Station Arnhem Zuid en de uitvalswegen A325 en A50 zijn snel bereikbaar, wat de ligging zeer geschikt maakt voor forenzen.
Indeling:
Begane grond
Via de ruime entree met garderobe heb je toegang tot de meterkast, het toilet, de woonkamer en de keuken. De uitgebouwde, tuingerichte woonkamer is heerlijk licht dankzij de hoge ramen en de openslaande deur naar de achtertuin, waardoor binnen en buiten mooi in elkaar overlopen.
De wanden en plafonds zijn strak gestuct en de vloer is afgewerkt met hoogwaardige Italiaanse travertin tegels.
De open keuken aan de voorzijde is modern uitgevoerd en voorzien van alle gemakken, met volop kastruimte. Dankzij het hoge raam en de openslaande deur is er veel daglicht en directe toegang tot de voortuin.
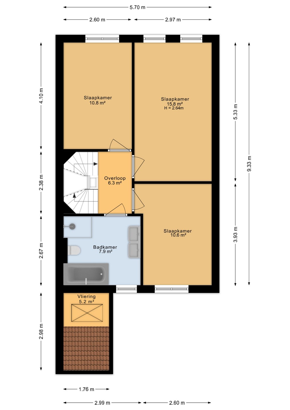
Eerste verdieping
Op de eerste verdieping bevinden zich drie ruime slaapkamers, afgewerkt met een duurzame PVC-vloer.
De moderne en ruime badkamer is compleet ingericht en voorzien van een dubbele wastafel, toilet, douche en ligbad. Dankzij het raam beschikt de badkamer over natuurlijke ventilatie en prettig daglicht.
Tweede verdieping
Via een vaste trap bereik je de zolderverdieping. Hier bevindt zich een aparte ruimte voor de wtw-installatie en de witgoedaansluitingen.
Op deze verdieping is tevens de vierde slaapkamer met dakraam gerealiseerd, ideaal als thuiskantoor, logeerkamer of extra slaapkamer.
Buiten
De achtertuin ligt gunstig op het zuiden en biedt volop zon gedurende de dag. De tuin is recent afgegraven en voorzien van geel zand, waardoor deze volledig naar eigen wens kan worden aangelegd. Dit biedt de ideale basis voor het realiseren van een terras, gazon of sfeervolle tuininrichting. Tevens is er een achterom en een bergruimte aanwezig voor tuingereedschap e.d.
Aan de voorzijde beschikt de woning over een stenen berging met vliering, wat zorgt voor extra opslagruimte.
Op eigen terrein is parkeergelegenheid voor twee grote auto’s.
Kenmerken:
- Woonoppervlakte: 154 m2
- Overige inpandige ruimte : 8 m2
- Externe bergruimte: 2 m2
- Inhoud: 577 m3
- Perceeloppervlakte: 187 m2
- Bouwjaar: 2024
- Energielabel A+++
Bijzonderheden:
- Volledig geïsoleerd
- 8 zonnepanelen
- Houten kozijnen
- Voorzien van vloerverwarming op elke verdieping
- Badkamer en keuken 2024
- Glasvezelaansluiting aanwezig
- Nieuwbouwwoning uit 2024 met uitbouw
- Verwarming via stadsverwarming en WTW
- Parkeren op eigen terrein en openbaar
Kom je een kijkje nemen? Neem dan je eigen NVM-aankoopmakelaar mee. Een aankoopmakelaar behartigt jouw belangen, denkt kritisch mee en helpt je tijd en zorgen te besparen. Op Funda vind je eenvoudig de contactgegevens van NVM-aankoopmakelaars bij jou in de buurt