Beschrijving

Instapklare eengezinswoning met uitbouw, veel licht en fijne tuin

Deze keurig onderhouden en uitgebouwde tussenwoning is een comfortabel familiehuis met volop leefruimte. De woning beschikt over drie slaapkamers en biedt op de tweede verdieping de mogelijkheid om eenvoudig een vierde slaapkamer te realiseren. De achtertuin is praktisch ingericht, onderhoudsarm en voorzien van een houten berging en een achterom.

Ligging
De woning is gelegen in de geliefde wijk Leesten in Zutphen, een rustige en groene woonomgeving met alle voorzieningen in de directe nabijheid. Basisscholen, speelplekken en sportfaciliteiten bevinden zich op korte afstand. Voor de dagelijkse boodschappen zijn diverse winkelcentra snel bereikbaar.
Ook natuurliefhebbers komen hier volop aan hun trekken: het uitgestrekte buitengebied ligt op slechts enkele minuten afstand. De N314 zorgt voor een snelle verbinding richting de A1 en A50. Het historische centrum van Zutphen, winkels en openbaar vervoer zijn eenvoudig bereikbaar. Een bushalte richting het centrum en het NS-station bevindt zich op circa vijf minuten loopafstand. Winkelcentra Dreiumme in Warnsveld en Leesten Oost zijn beide binnen ongeveer tien minuten te bereiken.

Begane grond
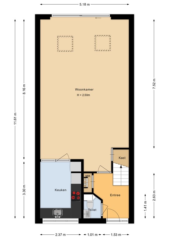
De entree geeft toegang tot de hal met garderobe, toiletruimte en trapopgang naar de eerste verdieping. Aan de voorzijde bevindt zich de moderne keuken in hoekopstelling met uitzicht op de straat. De uitgebouwde woonkamer ligt aan de achterzijde en is dankzij lichtkoepels aangenaam licht. De schuifpui zorgt voor een mooie verbinding met de tuin.

Eerste verdieping
Op deze verdieping bevinden zich drie slaapkamers en de badkamer. De moderne badkamer is uitgerust met een inloopdouche, extra breed wastafelmeubel, toilet, designradiator en een raam voor natuurlijke ventilatie en daglicht.

Zolder
De zolder is bereikbaar via een vaste trap en bestaat uit een ruime open verdieping die uitstekend geschikt is als vierde slaapkamer, werk- of hobbyruimte. Deze verdieping beschikt tevens over een dakterras/balkon, aansluitingen voor wasmachine/droger en de cv-installatie.

Buitenruimte
De achtertuin is gelegen op het noorden en aangelegd met een terras, borders en schuttingen. Achterin de tuin staat een houten berging voor extra opslagruimte. De tuin is bereikbaar via een achterom, wat praktisch is voor fietsen en tuinonderhoud.

Kenmerken:
- Woonoppervlakte: 123  m2
- Berging :  8 m2
- Balkon: 10 m2
- Inhoud woning: 429  m³
- Perceeloppervlakte: 150 m2
- Bouwjaar: 1995
- Energielabel B

Bijzonderheden:
- Volledig geïsoleerd
- Houten kozijnen (geschilderd in 2023)
- Dubbele beglazing, HR (woonkamer), HR++ (badkamer, zolder en voordeur)
- Vloerverwarming in woonkamer (tot de uitbouw), keuken en hal
- Glasvezelaansluiting aanwezig
- Mechanische ventilatie
- Keuken en badkamer vernieuwd in 2017
- Uitbouw met lichtkoepels gerealiseerd in 2020
- Atag cv-combiketel (eigendom, 2012)
- Fraaie, groene woonomgeving

Aanpassingen uitgevoerd in 2023
-  Volledige pui op zolder vernieuwd, inclusief HR++ glas en deur
-  Badkamerraam en voordeur vernieuwd en voorzien van veiligheidssloten
-  Extra isolatie aangebracht aan de onderzijde buitenkant van de keukenpui
-  Rolluiken geplaatst bij slaapkamers; overige ramen voorzien van screens (met uitzondering van de badkamer)

Kenmerken