Beschrijving

Ruime gezinswoning met multifunctionele ruimte en zonnige tuin

In een rustige en groene wijk van Zevenaar staat deze royale, halfvrijstaande woning met geschakelde multifunctionele ruimte op een groot perceel van circa 389 m². De woning biedt volop leefruimte met maar liefst vijf (slaap)kamers, een eigen oprit, woonkeuken, bijkeuken en een zonnige achtertuin op het zuiden.

De voormalige garage is omgetoverd tot een moderne, veelzijdige ruimte met voldoende elektra aansluitingen en een wastafel. Of je nu sport, thuiswerkt of een salon of gastenverblijf wilt creëren, de mogelijkheden zijn eindeloos.
Kortom: een ideale gezinswoning die rust, ruimte en gemak perfect combineert!

Locatie:
De woning bevindt zich in een kindvriendelijke buurt met het centrum, winkels, scholen en sportvoorzieningen op korte fietsafstand. Station Zevenaar is dichtbij en biedt snelle verbindingen naar Arnhem en omliggende steden. De A12 is goed bereikbaar, waardoor steden zoals Arnhem, Duiven en Doetinchem eenvoudig te bereiken zijn.

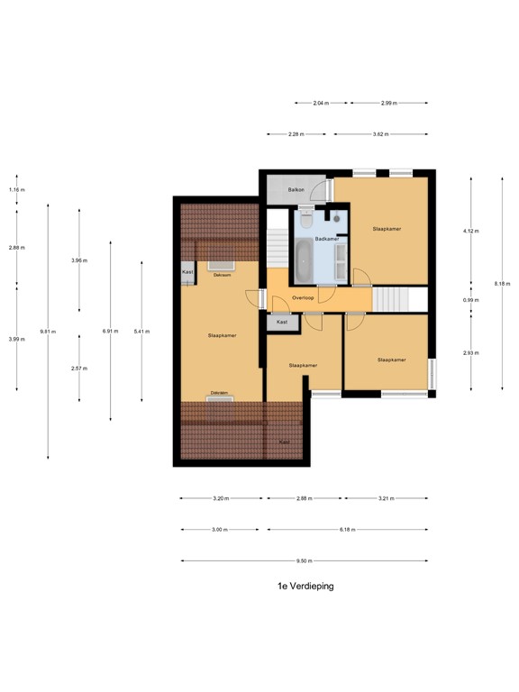
Indeling

Begane grond
Via de entree kom je in de hal met meterkast, toilet en trapopgang naar de eerste verdieping. De lichte en comfortabele woonkamer beschikt over twee zitgedeeltes; aan de achterzijde zorgt een sfeervolle gashaard voor extra warmte en gezelligheid. Vanuit hier is er directe toegang tot de zonnige achtertuin.

De royale, dichte woonkeuken is compleet uitgerust met inbouwapparatuur en biedt volop opbergruimte. Er is plaats voor een grote eettafel voor acht personen, en via de openslaande deuren is er een prettige verbinding met de tuin.
Aansluitend bevindt zich de bijkeuken met witgoedaansluitingen en eveneens toegang tot de tuin. Vanuit de keuken is bovendien de multifunctionele ruimte bereikbaar, die momenteel in gebruik is als sportruimte.

Eerste verdieping
Op de eerste verdieping bevinden zich vier slaapkamers en de badkamer. De badkamer beschikt over een douche, ligbad, toilet, dubbel wastafelmeubel en een raam. De grote slaapkamer boven de voormalige garage is voorzien van twee dakramen en airconditioning en wordt momenteel gebruikt als werkkamer. De slaapkamer aan de voorzijde heeft toegang tot een balkon, terwijl de overige slaapkamers aan de achterzijde zijn gelegen.

Tweede verdieping
Op de tweede verdieping bevindt zich de vijfde (slaap)kamer,  licht en comfortabel dankzij het dakraam, de airconditioning en de praktische inbouwkasten met volop bergruimte. Achter de stijlvolle kast met shutters is de cv-ketel keurig weggewerkt, wat bijdraagt aan de nette en verzorgde uitstraling van de ruimte.

Buitenruimte
Deze woning beschikt over een voor-, zij- en achtertuin die uitnodigen om te genieten van het buitenleven. De voortuin biedt een oprit en toegang tot de multifunctionele ruimte, terwijl de zonnige achtertuin op het zuiden dé plek is om te ontspannen.
De tuin is fraai aangelegd met een groen gazon, kleurrijke borders, bloembakken, diverse terrassen en bestrating, waardoor er altijd een plekje is voor elk moment van de dag. Een verzorgde moestuin nodigt uit om zelf groenten en kruiden te kweken, terwijl het ruime houten tuinhuis een praktische opbergruimte biedt. Dankzij de combinatie van houten en groene schuttingen geniet je hier van volop privacy. 

Kenmerken:
- Woonoppervlakte:  183 m2
- Berging 16 m2
- Balkon: 3 m2
- Inhoud:  653 m3
- Perceeloppervlakte: 389 m²
- Bouwjaar: 1991

Bijzonderheden:
- Energielabel A
- Volledig geïsoleerd en voorzien van dubbel glas
- Aanbouw uitgevoerd in 2003 inclusief het platte dak
- Toilet vervangen in 2022
- Platte dak achterkamer vervangen in 2021
- Dak tuinhuis en dakpannen: 2002
- Voorzien van hardhouten kozijnen, grotendeels geschilderd in 2025
- Glasvezelkabel
- Nefit cv-ketel (eigendom, 2021)
- 3 airco’s (2019)
- Keuken (2003), deels vernieuwd: vaatwasser (2025), kookplaat (ca. 2020), afzuigkap, oven en combimagnetron (2025)
- Aanbouw keuken en bijkeuken (2003)
- Meterkast aangepast tijdens plaatsing van de keuken
- Vloerverwarming in keuken en bijkeuken (warm water)

Kenmerken