Beschrijving

Tussenwoning met energielabel A, eigen parkeerplaats met carport

Deze tussenwoning in de kindvriendelijke wijk Broeklanden in Westervoort beschikt over drie slaapkamers, een lichte dakserre, twee bergingen en een zonnige achtertuin met carport. Parkeren kan comfortabel op eigen terrein.

Ligging
De woning aan Halve Morgen 119 is gelegen in de ruim opgezette wijk Broeklanden, die wordt gekenmerkt door veel groen, brede straten en een rustige woonomgeving. Alle dagelijkse voorzieningen, zoals winkels, scholen en sportfaciliteiten, zijn in de directe omgeving aanwezig. Het openbaar vervoer is goed geregeld met bushaltes en een NS-station in de buurt. De uitvalswegen A12, A348 en N325 zijn snel bereikbaar, waardoor Arnhem en omgeving gemakkelijk bereikbaar zijn. Broeklanden biedt daarmee een ideale combinatie van rust, natuur en uitstekende verbindingen naar stedelijke voorzieningen.

Indeling
Begane grond
Bij binnenkomst kom je in de hal met garderobe, die toegang biedt tot het toilet, de meterkast, de lichte tuingerichte woonkamer en de nette keuken aan de voorzijde.
De keuken is voorzien van inbouwapparatuur en biedt een vrij uitzicht op een groen veld met speeltuin. De ruime woonkamer aan de achterzijde heeft grote ramen, een open haard en een directe doorgang naar de tuin, waardoor er veel natuurlijk licht binnenkomt en er een prettige verbinding ontstaat tussen binnen en buiten. Via een vaste trap in de woonkamer bereik je de eerste verdieping.

Eerste verdieping
De overloop geeft toegang tot twee slaapkamers en de badkamer, welke is uitgerust met een ligbad, toilet en wastafel.

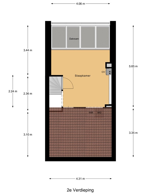
Tweede verdieping
Op de tweede verdieping bevindt zich een extra slaapkamer, samen met de cv-installatie en witgoedaansluitingen. De dakserre zorgt voor veel daglicht en een ruimtelijk gevoel. Achter de knieschotten is volop praktische bergruimte aanwezig.

Buitenruimte
De beschutte achtertuin biedt veel privacy en is voorzien van bestrating, borders en een houten schutting. Er is voldoende ruimte voor een terras en door de zuidelijke ligging geniet je vrijwel de hele dag van de zon. Daarnaast zijn er twee bergingen aanwezig: één direct bij de woning en één onder de carport.

Kenmerken
•	Woonoppervlak: 105 m2
•	Externe bergruimte: 13 m2
•	Overige inpandige ruimte 1 m2
•	Inhoud: 379 m3
•	Perceeloppervlak: 123 m2
•	Bouwjaar: 1975

Bijzonderheden
•	Energielabel: A
•	Voorzien van houten kozijnen (geschilderd in 2021) en kunststof kozijnen
•	Gevel, - en dakisolatie
•       Deels voorzien van dubbel glas en HR glas (behalve het wc-raampje op de begane grond)
•	Mechanische ventilatie
•	Aangesloten op glasvezelkabel
•	Verwarming via HR-cv-ketel (Remeha, bouwjaar 2022)
•	Open haard 
•	Dakserre in 2015 aangebracht
•	Eigen parkeerplaats met carport

Kenmerken