| Prijs | € 865.000,- k.k. |
| Type object | Eengezinswoning, woonhuis, twee onder een kap woning |
| Perceeloppervlakte | 441 m² |
| Woonoppervlakte | 152 m² |
| Aanvaarding | In overleg |
| Status | Nieuw in verkoop |
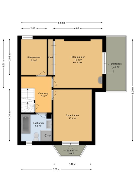
Sfeervolle jaren ’30 woning met ruimte, karakter en comfort in het geliefde Oosterbeek Aan de Graaf van Rechterenweg 13 staat deze charmante, uitgebouwde jaren ’30 woning waarin authentieke details en hedendaags wooncomfort op fraaie wijze samenkomen. Met maar liefst vier slaapkamers, een ruime woonkeuken, serre, erker, kelder en een ruime zolderverdieping biedt deze woning volop ruimte voor het hele gezin. Ligging De woning is gelegen in een van de meest geliefde en groene delen van Oosterbeek, in de rustige en kindvriendelijke wijk Oosterbeek-Noordoost. Deze prettige woonomgeving kenmerkt zich door een ideale combinatie van rust, natuur en uitstekende bereikbaarheid. Op korte loopafstand bevindt zich het gezellige dorpscentrum met diverse winkels, supermarkten en horecagelegenheden. Ook het NS-station ligt op loopafstand, wat zorgt voor goede verbindingen richting onder andere Arnhem en Utrecht. Daarnaast zijn de uitvalswegen (A12 en A50) binnen enkele minuten bereikbaar, waardoor omliggende steden snel te bereiken zijn. Wat deze locatie extra aantrekkelijk maakt, is de nabijheid van uitgestrekte natuurgebieden. De bossen en uiterwaarden van de Rijn liggen op korte afstand, ideaal voor wandelen, fietsen en recreëren in het groen. Indeling Begane grond Via de hal met garderobe heb je toegang tot de meterkast, het toilet, de woonkamer en de keuken. De woonkamer bevindt zich aan de voorzijde en beschikt over een karakteristieke erker, een sfeervolle haard en authentieke en-suite schuifdeuren met glas-in-lood, die de woonkamer scheiden van het eetgedeelte. Aansluitend aan het eetgedeelte bevindt zich een gezellige serre aan de zijkant van de woning, die zorgt voor veel lichtinval en een fijne verbinding met buiten. De woonkeuken is gelegen aan de achterzijde en voorzien van een ruim eetgedeelte. Via openslaande deuren is er directe toegang tot de tuin. Aangrenzend bevindt zich een praktische bijkeuken met aansluitingen voor wasmachine en droger. Hier bevindt zich ook de cv-opstelling. Eerste verdieping Op de eerste verdieping bevinden zich drie ruime slaapkamers en de badkamer. Eén van de slaapkamers beschikt over een dakterras en wastafel; een andere kamer heeft toegang tot een balkon. De badkamer is uitgerust met een ligbad, douche, tweede toilet en wastafel. Dankzij het raam is er sprake van natuurlijke ventilatie en prettig daglicht. Tweede verdieping Via een vaste trap bereik je de zolderverdieping. Daarnaast is hier een vierde slaapkamer gerealiseerd met dakraam, ideaal als thuiskantoor, logeerkamer of extra slaapkamer. Bostuin De woning beschikt over een voor-, zij- en achtertuin en is volledig omheind. De diepe voortuin is aangelegd met grind, veel groen en een natuurlijke erfafscheiding, wat zorgt voor een prettige afstand tot de weg en veel privacy. De achtertuin ligt op het noordoosten en beschikt over een verhoogd terras direct aan de woning. Dankzij de gunstige ligging en de diepte van de tuin is er gedurende de dag volop zon, waardoor verschillende plekken in de tuin uitnodigen om te ontspannen. De tuin is aangelegd met een gazon, groene borders en volgroeide bomen, wat zorgt voor een rustige en groene uitstraling. Daarnaast is de tuin voorzien van een praktische overkapping voor houtopslag en een garage/schuur, waardoor er veel bergruimte en functionaliteit aanwezig is. Kenmerken: - Woonoppervlakte: 152 m2 - Kelder : 11 m2 - Gebouwgebonden buitenruimte: 10 m2 - Externe bergruimte: 22 m2 - Inhoud: 566 m3 - Perceeloppervlakte: 441 m2 - Bouwjaar: 1928 - Energielabel: C Bijzonderheden: - Gevelisolatie - Houten kozijnen (geschilderd in 2023: hele buitenkant beneden en boven, dakkapel voor en achter. In 2025: serre en overstek zijkant) - Grotendeels voorzien van isolerende beglazing: dubbel glas, HR+, HR++ en Tripple glas - CV-combiketel (Nefit, 2023, eigendom) - Boiler in keuken en gasgeiser voor badkamer op zolder - Vloerverwarming in de aanbouw (woonkeuken) - Meterkast vernieuwd in 2001 - Uitbouw keuken 2002 - Glasvezelaansluiting aanwezig - Aparte elektrische schakelaar voor stroomvoorziening garage/berging (in bijkeuken) - Aftapkraan voor buitenkraan aanwezig in de kelder - Parkeren op eigen terrein - Garage mogelijk - Op slechts 100 meter afstand bevindt zich het station, vanwaar je binnen 4 minuten in Arnhem bent en in circa 35 minuten Utrecht bereikt – snel, comfortabel en zonder files of parkeerzorgen. Kom je een kijkje nemen? Neem dan je eigen NVM-aankoopmakelaar mee. Een aankoopmakelaar behartigt jouw belangen, denkt kritisch mee en helpt je tijd en zorgen te besparen. Op Funda vind je eenvoudig de contactgegevens van NVM-aankoopmakelaars bij jou in de buurt.
| Vraagprijs | € 865.000,- k.k. |
| Status | Nieuw in verkoop |
| Aanvaarding | In overleg |
| Aangeboden sinds | Vrijdag 17 april 2026 |
| Type object | Eengezinswoning, woonhuis, twee onder een kap woning |
| Soort bouw | Bestaande bouw |
| Bouwjaar | 1928 |
| Dakbedekking | Dakpannen |
| Type dak | Samengesteld |
| Isolatievormen | Dakisolatie Dubbel glas Gedeeltelijk dubbel glas Muurisolatie |
| Perceeloppervlakte | 441 m² |
| Woonoppervlakte | 152 m² |
| Inhoud | 566 m³ |
| Oppervlakte overige inpandige ruimten | 11 m² |
| Oppervlakte externe bergruimte | 22 m² |
| Oppervlakte gebouwgebonden buitenruimte | 10 m² |
| Aantal bouwlagen | 4 |
| Aantal kamers | 6 (waarvan 4 slaapkamers) |
| Ligging | Aan rustige weg Beschutte ligging In bosrijke omgeving In woonwijk |
| Type | Achtertuin |
| Hoofdtuin | Ja |
| Oriëntering | Noord-oost |
| Heeft een achterom | Ja |
| Staat | Normaal |
| Tuin 2 - Type | Achtertuin |
| Tuin 2 - Staat | Normaal |
| Tuin 3 - Type | Voortuin |
| Tuin 3 - Staat | Normaal |
| Tuin 4 - Type | Zijtuin |
| Tuin 4 - Staat | Normaal |
| Energielabel | C |
| CV ketel | Nefit |
| Warmtebron | Gas |
| Bouwjaar | 2023 |
| Combiketel | Ja |
| Eigendom | Eigendom |
| Aantal parkeerplaatsen | 2 |
| Warm water | CV-ketel Gasboiler Geiser |
| Verwarmingssysteem | Centrale verwarming Vloerverwarming (gedeeltelijk) |
| Badkamervoorzieningen | Douche Ligbad Toilet Wastafel |
| Heeft een balkon | Ja |
| Heeft kabel-tv | Ja |
| Heeft een rookkanaal | Ja |
| Glasvezelaansluiting aanwezig | Ja |
| Tuin aanwezig | Ja |
| Heeft schuur/berging | Ja |
| Heeft een dakraam | Ja |
| Heeft zonwering | Ja |
| Heeft ventilatie | Ja |
| Kadastrale aanduiding | Oosterbeek C 2951 |
| Perceeloppervlakte | 441 m² |
| Omvang | Geheel perceel |
| Eigendomsituatie | Eigen grond |