Beschrijving

Ruime gezinswoning met 6 slaapkamers, tuin en vrij uitzicht in Molenbeke

Op zoek naar een ruime, goed onderhouden gezinswoning met karakter?
Deze charmante tussenwoning in de wijk Molenbeke beschikt over maar liefst 6 slaapkamers, een voor- én achtertuin, vrij uitzicht op groen en ruime parkeermogelijkheden in de straat. Een ideale woning voor gezinnen die ruimte, comfort en sfeer zoeken.

Ligging: 
De woning is gelegen in de geliefde en groene wijk Molenbeke in Arnhem. De buurt is rustig, kindvriendelijk en ruim opgezet. In de directe omgeving bevinden zich basisscholen, speeltuinen, sportvoorzieningen en winkels. Ook diverse parken en wandelgebieden, waaronder Park Sonsbeek, liggen op korte afstand. Ook in de nabije omgeving (Klarendal), bevinden zich diverse restaurants en cafés voor het nodige vertier. Het centrum van Arnhem en het NS-station zijn te voet of per fiets bereikbaar. Daarnaast zijn de uitvalswegen richting de A12 en A50 snel aan te rijden.  

Begane grond:
Via het karakteristieke voorportaal met originele glas-in-looddeur, waar ruimte is voor de garderobe, bereik je de hal met meterkast en toilet. Via een vaste trap is de kelder te bereiken, die extra opslagruimte biedt en tevens toegang geeft tot de kruipruimte onder de woonkamer.
De woonkamer is aan de voorzijde van de woning gelegen en biedt uitzicht op de verzorgde voortuin. Aan de achterzijde bevindt zich de eetkamer, die in open verbinding staat met de keuken.
Vanuit de eetkamer is de achtertuin bereikbaar via een schuifpui, wat zorgt voor een prettige verbinding tussen binnen en buiten.
Aansluitend bevindt zich de hoekkeuken, voorzien van diverse inbouwapparatuur en voldoende bergruimte. Vanuit de keuken is de tuin tevens toegankelijk via een openslaande deur.

Eerste verdieping
Op de eerste verdieping bevinden zich 3 slaapkamers en een praktische wasruimte met aansluitingen voor wasmachine, droger en de cv-ketel. Zowel de achterste slaapkamer als de wasruimte geven toegang tot het balkon. De voorste kamers zijn multifunctioneel en kunnen bijvoorbeeld worden ingericht als slaapkamer, kantoor of walk-in closet.
De moderne badkamer is uitgerust met een douche en een wastafelmeubel.

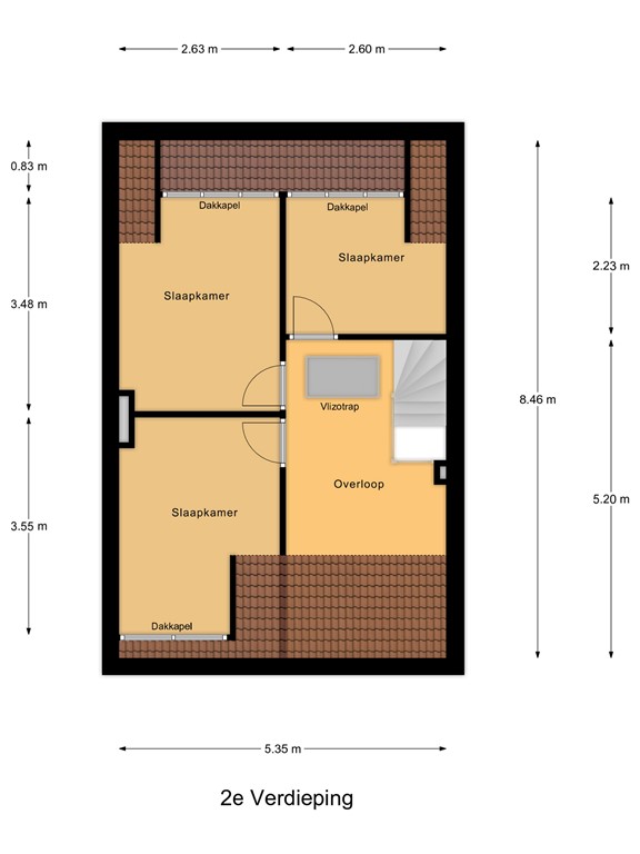
Tweede verdieping
De tweede verdieping beschikt over nog eens 3 slaapkamers en een vliering. Aan de achterzijde is een goed geïsoleerde kunststof dakkapel over de volledige breedte van de woning geplaatst, wat zorgt voor extra licht en ruimte.
De twee kamers aan de achterzijde zijn eenvoudig samen te voegen door de scheidingsmuur te verwijderen.

Vliering:
Praktische bergruimte voor seizoensspullen en overige opslag.

Buitenruimte
De woning beschikt over een ruime voortuin op het zuiden met uitzicht op straat, water en groen. De achtertuin op het noorden is onderhoudsvriendelijk ingericht. Het verhoogde terras direct aan de woning loopt via een trap naar het lager gelegen gedeelte met een berging en een achterom, ideaal voor fietsen en tuinspullen.

Kenmerken
-	Woonoppervlak: 123 m²
-	Balkon : 15 m²
-	Berging : 5 m²
-	Inhoud: 441 m³
-	Perceeloppervlak: 134 m²
-	Bouwjaar: 1935

Bijzonderheden
-	 Energielabel B
-	Gevel-, dak- en vloerisolatie
-	Deels HR++, Hr, dubbel en enkel glas
-	Houten kozijnen (geschilderd in 2024)
-	Overstek 1e verdieping, voordeur, keukendeur en houtwerk van de berging geschilderd in 2025
-	Kunststof dakkapel aan de achterzijde
-	Nefit combiketel uit 2022 (eigendom)
-	Glasvezelinternet aanwezig
-	Badkamer vernieuwd in 2022
-	Keuken vernieuwd in 2021

September/oktober 2024:
-	(Vrijwel) alle leidingen op de begane grond vernieuwd
-	Meterkast vervangen
-	Alle schakelaars en stopcontacten in de woning vernieuwd
-	Door de vorige eigenaar zijn wifischakelaars geplaatst en is de zolderverdieping volledig voorzien van nieuwe elektra
-	Extra elektrabuis (grote diameter) aangebracht van kelder naar zolder ten behoeve van eventuele zonnepanelen
-	Dakbedekking schuurtje is voorjaar 2025 vernieuwd

Kenmerken