Beschrijving

Opknapper met potentie in groene woonwijk Arnhem-Noord

Ben je op zoek naar een woning die je volledig naar eigen wens kunt moderniseren? Dan is Magerhorststraat 24 precies wat je zoekt. Deze tussenwoning heeft twee slaapkamers, een voor- én achtertuin en biedt volop mogelijkheden voor handige doeners die hun eigen droomplek willen realiseren.

Ligging
De woning ligt in de rustige en groene woonwijk “Over het Lange Water” in Arnhem-Noord, op de grens met Velp. In de directe omgeving vind je diverse voorzieningen zoals buurtwinkels, scholen, parken, sportfaciliteiten en openbaar vervoer. Ook winkelcentrum Presikhaaf en het Presikhaafpark met educatieve boerderij liggen op loopafstand.

Dankzij de nabijheid van de N325, A12 en A348 ben je snel onderweg richting andere steden. Binnen circa 10 minuten rijden bereik je bovendien het industrieterrein in Duiven met meerdere bouwmarkten en woonwinkels – ideaal tijdens een verbouwing. In de buurt zijn daarnaast volkstuintjes aanwezig voor liefhebbers van groen en buitenleven.

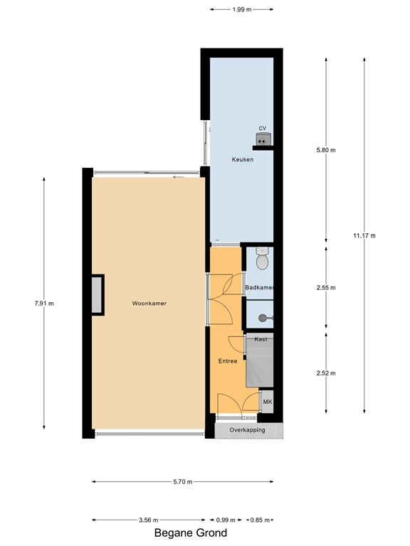
Begane grond
Via de voortuin bereik je de entree van de woning. De hal geeft toegang tot de meterkast, de lichte woonkamer, de keuken (casco), de badkamer en de trapopgang naar de eerste verdieping.

De woonkamer beschikt over grote raampartijen aan zowel de voor- als achterzijde, waardoor er veel daglicht binnenvalt. De schuifpui aan de achterzijde zorgt bovendien voor een prettige verbinding met de tuin.

De keukenruimte is momenteel volledig leeg; er is op dit moment geen keuken aanwezig. Dit biedt toekomstige bewoners de vrijheid om hier een keuken te plaatsen die volledig aansluit op hun eigen woonwensen, zowel qua indeling als afwerking. Vanuit deze ruimte is er tevens toegang tot de achtertuin via een schuifpui.

De badkamer bevindt zich op de begane grond en is voorzien van een douche en toilet.

De zonnige achtertuin ligt op het zuidwesten en biedt veel potentie. Hoewel de tuin momenteel aandacht nodig heeft, kun je hier een heerlijke buitenruimte creëren: van een onderhoudsvriendelijke patio tot een groene tuin met optimale privacy.

Eerste verdieping
De overloop met dakraam zorgt voor extra licht op de verdieping. Hier bevinden zich twee slaapkamers.

Algemene gegevens:
- Bouwjaar: 1968
- Woonoppervlakte:  80 m²
- Gebouwgebonden buitenruimte: 1 m²
- Perceeloppervlakte  145 m²
- Inhoud: ca.  302 m³
- Energielabel: G

Bijzonderheden:
- Grotendeels voorzien van dubbel glas (behalve enkele kleine ramen)
- Kluswoning met veel potentie
- Twee slaapkamers op de eerste verdieping
- Ruime voor- en achtertuin
- Rustige, groene ligging met alle voorzieningen binnen handbereik
- Nabij uitvalswegen, winkelcentrum Presikhaaf en diverse parken
- Voorzien van rolluiken

Kenmerken