Beschrijving

Licht hoekappartement met panoramisch uitzicht en balkon op het oosten

Op de bovenste verdieping van een verzorgd en modern appartementencomplex ligt dit lichte en ruime 3-kamerappartement. Dankzij de gunstige hoekligging en de grote raampartijen geniet je hier van een overvloed aan daglicht en een schitterend panoramisch uitzicht over Arnhem en de Veluwezoom. Op het balkon zit je heerlijk vrij met zon in de ochtend en vroege middag.

Het appartement beschikt over een royale woonkamer, twee goed bemeten slaapkamers, een nette keuken en badkamer, én een eigen berging in de onderbouw.

Locatie
De IJssellaan ligt in een groene en rustige woonomgeving met alle voorzieningen binnen handbereik. Supermarkten, winkelcentrum Presikhaaf, scholen, park Presikhaaf en openbaar vervoer bevinden zich op korte afstand. Ook de uitvalswegen richting de A12 en A15 zijn snel bereikbaar en parkeren kan ruimschoots voor de deur.

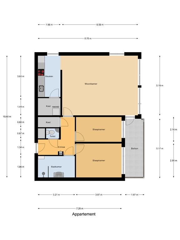
Indeling

Begane grond:
Gezamenlijke entree met brievenbussen, video-intercom en toegang tot de bergingen. Via de lift of het trappenhuis bereik je de zesde en tevens bovenste verdieping.

Zesde verdieping:
Entree met hal, garderobe, toiletruimte en kast met cv-installatie.

Woonkamer
De woonkamer vormt het hart van de woning en straalt ruimte en licht uit dankzij de vele ramen rondom. De hoekligging zorgt voor een weids uitzicht over de stad en de groene omgeving. Er is voldoende plek voor een gezellige zithoek en eettafel. Via de woonkamer heb je direct toegang tot zowel het balkon als de keuken, waardoor binnen en buiten prettig in elkaar overlopen.

Keuken
De dichte keuken is voorzien van inbouwapparatuur en biedt voldoende werk- en kastruimte. Aangrenzend vind je een ruime inpandige berging met witgoedaansluitingen, ideaal voor extra opslag of voorraad.

Slaapkamers
Het appartement beschikt over twee volwaardige slaapkamers, beide voorzien van grote ramen en een verzorgde afwerking. 

Badkamer
De moderne badkamer is toegankelijk vanuit de hal en deze is ruim van formaat. De badkamer is geheel betegeld en is voorzien van een wastafelmeubel en inloopdouche. 

Balkon
Het balkon ligt op het oosten en biedt een prachtig vrij uitzicht over de groene omgeving.

Kenmerken:
- Woonoppervlakte: 84 m2
- Balkon: 9 m² 
- Berging: 4 m2
- Inhoud woning: 257 m³
- Bouwjaar: 1997
- Energielabel B

Bijzonderheden:
- Energielabel B
- Gelegen op de bovenste (zesde) verdieping
- Volledig geïsoleerd en voorzien van dubbel glas
- Houten kozijnen 
- Voorzien van dubbel glas
- Cv-ketel: Remeha Avanta, bouwjaar 2025 (eigendom)
- Glasvezelaansluiting aanwezig
- Vrij uitzicht en veel privacy
- Lift aanwezig
- Voldoende parkeergelegenheid
- VvE-bijdrage € 155,-- per maand

Kenmerken