Beschrijving

Duurzame bovenwoning met stijl, comfort en energielabel A+

Welkom aan de Agnietenstraat 53 in Arnhem, een charmante en eigentijdse bovenwoning, verdeeld over twee woonlagen. Deze woning combineert karakter met modern wooncomfort en beschikt over drie slaapkamers, twee balkons, een buitenberging én kelderberging.
Door de aanwezigheid van 9 zonnepanelen, een hybride warmtepomp, isolatieglas, dakisolatie en diverse recente verbeteringen is de woning zeer energiezuinig, wat resulteert in het energielabel A+. Je woont hier dus niet alleen comfortabel, maar ook duurzaam en toekomstbestendig.
Kortom: een sfeervolle, goed onderhouden woning op een aantrekkelijke locatie, waar stijl, comfort en duurzaamheid samenkomen.

Locatie
De woning ligt in het levendige Klarendal, een populaire wijk op korte afstand van het centrum van Arnhem. In de directe omgeving vind je het creatieve Modekwartier, gezellige cafés, winkels en diverse restaurants. Ook scholen, supermarkten en sportvoorzieningen liggen op loop- of fietsafstand.
Met station Arnhem Velperpoort om de hoek en uitvalswegen die snel te bereiken zijn, is de ligging bovendien ideaal voor forenzen. En voor wie graag de natuur opzoekt: Park Sonsbeek ligt op slechts enkele minuten wandelen.

Indeling

Begane grond:
Via de entree kom je in de hal met meterkast, trapopgang naar de woonverdieping en toegang tot de ruime kelderberging.

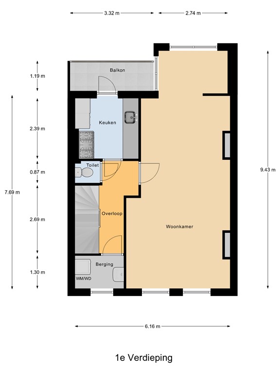
Eerste verdieping:
De overloop biedt toegang tot het toilet, een praktische wasruimte met aansluitingen voor wasmachine en droger, en alle overige vertrekken.
De lichte woonkamer heeft grote ramen, authentieke paneeldeuren en twee schouwen, wat bijdraagt aan de karakteristieke sfeer van de woning. De moderne keuken (2018) ligt aan de achterzijde en is voorzien van inbouwapparatuur en volop bergruimte. Via de openslaande deur bereik je het balkon, een fijne plek voor een kop koffie in de ochtend- of middagzon. Aan de achterzijde bevindt zich daarnaast een extra ruimte, ideaal als werk- of hobbykamer.

Tweede verdieping:
De ruime overloop met lichtkoepel geeft toegang tot drie slaapkamers en de badkamer.
De slaapkamer aan de voorzijde beschikt over een dakkapel, wat zorgt voor extra licht en ruimte. Eén slaapkamer aan de achterzijde biedt toegang tot het tweede balkon, dat bereikbaar is via het raam.
De badkamer is modern uitgevoerd en uitgerust met een douchecabine, tweede toilet, dubbel wastafelmeubel en eveneens een dakkapel.

Buiten
De woning beschikt over twee balkons op het zuidoosten, bereikbaar vanuit de keuken en één slaapkamer – perfect voor een momentje rust in de ochtend- en middagzon.

Kenmerken:
- Woonoppervlakte: 97 m2
- Balkon: 4 m² op de eerste verdieping en 5 m2 op de tweede verdieping
- Overige inpandige ruimte: 23m2 
- Berging: 6 m2
- Inhoud woning: 336 m³
- Bouwjaar: ca 1910
- Energielabel A+

Bijzonderheden:
- Bovenwoning verdeeld over twee woonlagen
- Grotendeels dakisolatie (platte dak)
- Eerste verdieping: dubbel glas, tweede verdieping: HR++ glas
- Plat dak vernieuwd en geïsoleerd in 2022 (met nieuw dakraam)
- Badkamer en keuken vernieuwd in 2018
- Houten kozijnen, geschilderd (voorzijde 2022, achterzijde 2020)
- Remeha hybride warmtepomp (2022, eigendom)
- In 2022 voorzien van zonnepanelen (9 stuks)
- Nieuwe groepenkast, bedrading en schakelmateriaal (2018)
- Glasvezelaansluiting aanwezig
- Twee balkons op het zuidoosten
- VvE-bijdrage € 80,-- per maand

Kenmerken