Beschrijving
Karakteristiek wonen in het hart van Aerdt
In de kern van het sfeervolle dorp Aerdt staat deze charmante helft van een dubbel woonhuis te koop. De woning combineert karakter en comfort, beschikt over een aangebouwde berging, een grote vrijstaande schuur met zolder, een royale tuin en een oprit op eigen terrein.
Dankzij de ruime indeling en de aanwezigheid van bijgebouwen is dit een ideale woning voor wie wonen en werken wil combineren, bijvoorbeeld voor een ZZP’er aan huis.
De woning ligt in de gemeente Zevenaar, met diverse voorzieningen binnen handbereik. Het nabijgelegen Lobith biedt winkels en sportvoorzieningen, en via de A12, A18 en de nabijheid van de Duitse grens zijn steden als Arnhem en Doetinchem uitstekend bereikbaar.
Veel authentieke details zijn behouden gebleven, wat deze woning zijn unieke uitstraling geeft. Door de jaren heen is het huis gemoderniseerd en voorzien van hedendaags wooncomfort.
Indeling
Begane grond:
Entree, hal met originele tegelvloer, trapopgang, meterkast en toegang tot de kelder. De sfeervolle woonkamer met veel daglicht heeft fraaie details zoals glas-in-loodramen. De open keuken is voorzien van diverse inbouwapparatuur. De badkamer op de begane grond is uitgerust met een ligbad, inloopdouche, dubbel wastafelmeubel en toilet. In de bijkeuken vind je de wasmachine-/drogeraansluiting, een toilet en de CV-opstelling . Vanuit hier is er toegang tot de zonnige diepe achtertuin.
Eerste verdieping:
Overloop, drie ruime slaapkamers, waarvan één met toegang tot een royaal dakterras van circa 25 m² en de derde slaapkamer iets hoger ligt (split-level).
Tweede verdieping:
Via een vlizotrap is de bergzolder bereikbaar.
Kelder:
Via de hal is de kelder bereikbaar.
Bijgebouwen:
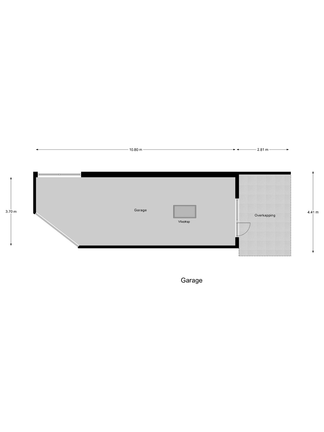
Aan de achterzijde van de woning, grenzend aan de tuin, bevinden zich een ruime garage/schuur en een sfeervolle overkapping. Daarnaast beschikt de woning over een tweede berging en een royaal dakterras. Op eigen terrein is een riante oprit aanwezig met parkeergelegenheid voor maar liefst drie auto’s.
Algemene gegevens:
• Bouwjaar: 1928
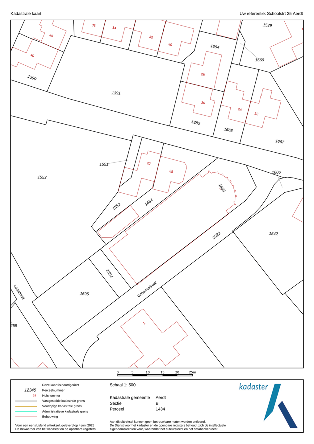
• Perceeloppervlakte: 445 m²
• Inhoud: ca. 508 m³
• Woonoppervlakte: ca. 123 m²
• Overige inpandige ruimte: ca. 19 m²
• Externe bergruimte: ca. 57 m²
Bijzonderheden:
• Oprit met ruimte voor vier auto's
• Garage/schuur + extra berging
• Krachtstroom aanwezig in de schuur
• Voorzien van sfeervolle overkapping
• grotendeels voorzien van dubbel glas
• Voorzien van 12 zonnepanelen
• Airconditioning aanwezig in de woonkamer
• Prachtige uitstraling met originele details
• Diepe achtertuin op het zuidwesten
• Eerste verdieping gerenoveerd in 2015 (nieuwe wanden, plafonds en vloerafwerking)
• Sfeervolle woonkamer met moderne keuken